Agronegócio & EconomiaCultura & EventosEmprego & QualificaçãoEsportesGeralObituárioOpiniãoPolíticaPublicação LegalSaúdeSegurançaSem categoriaTecnologiaGuia Comercial
Cultura & EventosEsportesGeralObituárioPolíticaPublicação LegalSaúdeSegurançaGuia Comercial
Publicidade
Saúde

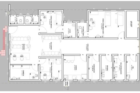
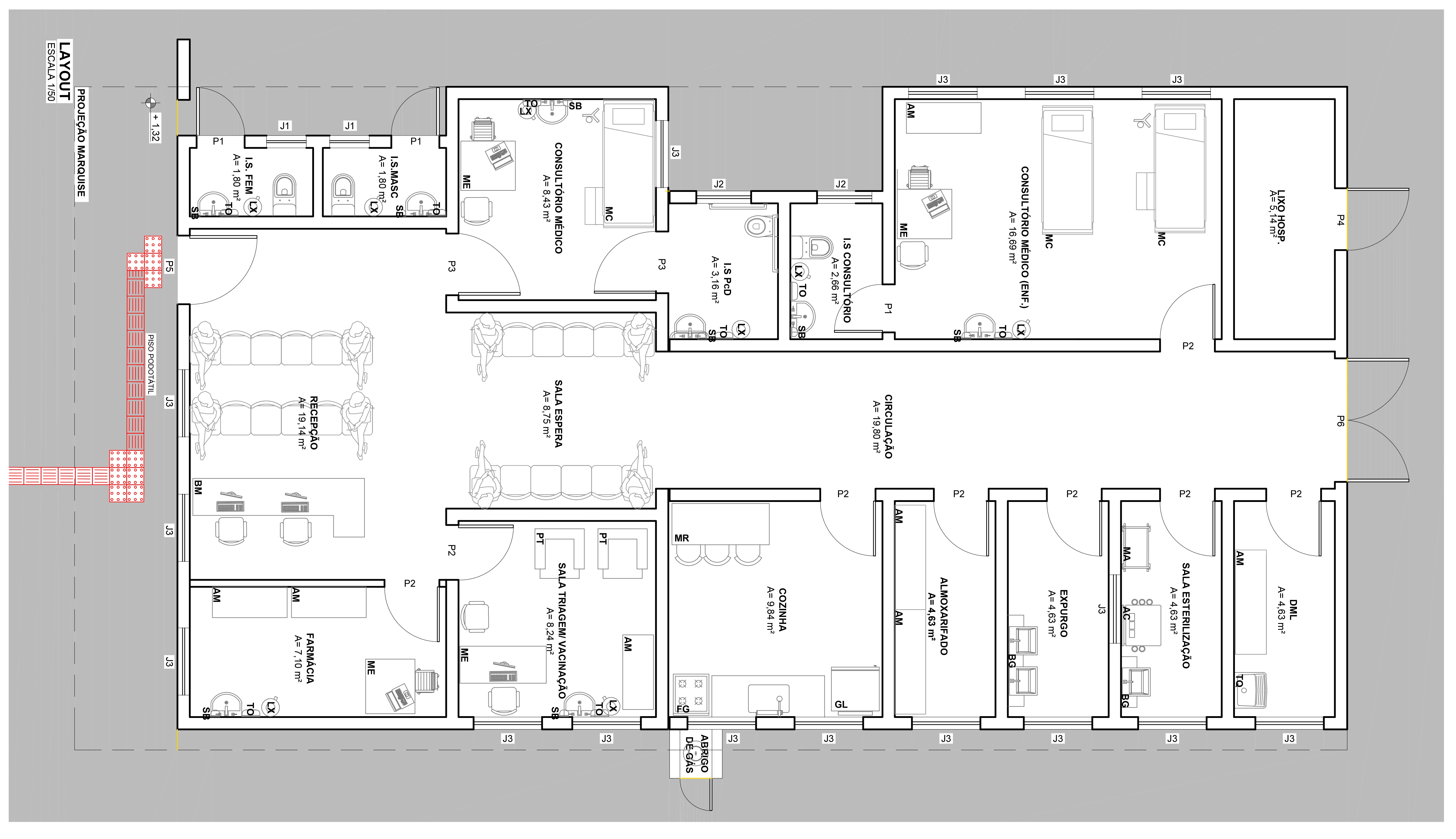
Prefeitura apresenta projeto de ampliação e reforma da UBS de Santa Bárbara

Prefeitura apresenta projeto de ampliação e reforma da UBS de Santa Bárbara
(Fotos: Divulgação / PMP)
Publicidade
COM ASSESSORIAS - A Prefeitura de Palmeira apresentou o projeto de reforma e ampliação da Unidade Básica de Saúde de Santa Bárbara na última sexta-feira (24). O projeto agora segue para fase licitatória, com valor máximo de R$ 584.815,02, investimento que será realizado com recursos próprios do Município.

Após o processo licitatório ser finalizado e o contrato assinado com a empresa vencedora do certame, a obra deverá ser concluída no prazo máximo de seis meses.

Além da reforma da área já existente, a UBS de Santa Bárbara também será ampliada em 88 m², passando de 64,3 m² para 152,3 m². A nova área contará com cozinha, almoxarifado, expurgo, sala de esterilização, depósito de materiais de limpeza, depósito para lixo hospitalar, consultório médico e banheiros.

Já a área reformada, que passará por transformações, contará com triagem, sala de vacinação, consultório médico, recepção, farmácia, sala de espera e banheiros.

A apresentação foi realizada pela diretora de Departamento de Desenvolvimento Urbano e Projetos, Andreza Schmidt Gonçalves, e pelo secretário de Desenvolvimento Urbano, Diego José Lopes, ao vice-prefeito Major Schulli, à Secretaria de Saúde, Ana Paula Ferreira Marques e ao vereador Odair Sanson.

Galeria de Imagens:

Leia também

Boletim da COVID em Palmeira confirma 5 novos casos na última semana
Publicidade

Mais Lidas

Inscrições para o JEM Cultural terminam na segunda-feira

Prefeitura de PG quita mais de R$ 200 milhões em precatórios entre 2021 e março de 2026

Casa da Indústria de Ponta Grossa e SESI promovem workshop sobre saúde e segurança do trabalho

Carreta do Programa “Agora Tem Especialidades” do Ministério da Saúde atende mulheres até 8 de março em Telêmaco Borba

Dentista do Paraná é preso suspeito de cometer estupro em consultório e chácara

Categorias

Agronegócio & EconomiaCultura & EventosEmprego & QualificaçãoEsportesGeralObituárioOpiniãoPolíticaPublicação LegalSaúdeSegurançaSem categoriaTecnologia

Cidades

  • Arapoti
  • Carambeí
  • Castro
  • Correio REGIONAL
  • Geral
  • Jaguariaíva
  • Palmeira

Categorias

Redes Sociais

Hospedado por CloudFlash
Desenvolvido por Flize Tecnologia